Traumhafte Rheinlage: Erdgeschosswohnung mit großem Garten, 3 Terrassen und Tiefgaragenstellplätzen





































Objektart
Wohnung
Objekttyp
Erdgeschoss
Vermarktungsart
Kauf
PLZ
40593
Ort
Düsseldorf Benrath
ImmoNr
2026-429
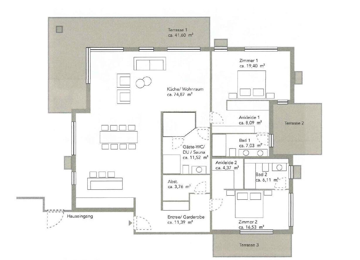
Wohnfläche
ca. 192 m²
Nutzfläche
ca. 10 m²
Anzahl Zimmer
3
Anzahl Badezimmer
3
Kaufpreis
1.590.000,00 €
Baujahr
2018
Endenergiebedarf
16,5 kWh/(m²a)
Energieausweis
Bedarfsausweis
Energieausweis gültig bis
24.09.2030
Energieeffizienzklasse
A+
Provision
3,57 % des Kaufpreises inkl. 19 % ges. MwSt.
Beschreibung
Willkommen im neuen Traumzuhause in Bestlage am Rhein!Diese außergewöhnliche Erdgeschosswohnung in Düsseldorf-Benrath verbindet zeitlose Architektur mit modernem Komfort auf höchstem Niveau. Das im Jahr 2018 erbaute, neuwertige Gebäude präsentiert sich in einem ausgezeichneten Zustand und bietet mit ca. 192 m² Wohnfläche sowie ca. 10 m² zusätzlicher Nutzfläche ein großzügiges Zuhause, das sowohl Familien als auch anspruchsvollen Paaren eine ideale und barrierefreie Wohnlösung eröffnet.
Schon beim Betreten überzeugt die Wohnung durch ihre hellen, weitläufigen Räume. Die hohen Decken verleihen dem Interieur ein repräsentatives Ambiente, während die edlen Eichen-Parkettböden in den Wohnbereichen für eine warme und stilvolle Atmosphäre sorgen. Die barrierefreie Gestaltung gewährleistet dabei ein Höchstmaß an Alltagstauglichkeit und Komfort.
Auch in puncto Sicherheit und Privatsphäre lässt dieses Objekt keine Wünsche offen: Eine moderne Alarmanlage, eine Video-Gegensprechanlage mit Kameraüberwachung, elektrische Rollläden sowie ein erhöhter Schallschutz und abschließbare Fenster bieten ein rundum geschütztes und ruhiges Wohnerlebnis.
Ein besonderes Highlight bildet der private Wellnessbereich mit hochwertiger finnischer Sauna von der Firma Klafs – Ihr ganz persönlicher Rückzugsort für Entspannung und Erholung. Für sonnige Stunden im Freien stehen Ihnen gleich drei großzügige Terrassen zur Verfügung, die durch ihre unterschiedliche Ausrichtung zu jeder Tageszeit den perfekten Platz zum Verweilen bieten.
Darüber hinaus sorgen zwei bis drei komfortable Tiefgaragenstellplätze sowie ein Personenaufzug bis in alle Etagen für zusätzlichen Komfort im Alltag.
Die Wohnung ist nach Absprache kurzfristig verfügbar und eröffnet Ihnen die Möglichkeit, sich in einer der begehrtesten Lagen Düsseldorfs niederzulassen. Die direkte Rheinlage verbindet stilvolles Wohnen mit einem hohen Freizeitwert: Genießen Sie Spaziergänge am Wasser, die Nähe zur Natur sowie die hervorragende Infrastruktur des charmanten Stadtteils Benrath mit seinen Einkaufsmöglichkeiten, Restaurants und kulturellen Angeboten.
Dieses Objekt vereint Exklusivität, Komfort und Lage in idealer Form – eine einmalige Gelegenheit für alle, die das Besondere suchen.
Lage
Diese charmante Erdgeschosswohnung befindet sich in einer der begehrtesten Lagen von Düsseldorf, im malerischen Stadtteil Benrath. Die Nähe zum idyllischen Rheinufer – nur eine Minute entfernt – bietet Ihnen die Möglichkeit, entspannte Spaziergänge oder sportliche Aktivitäten entlang des Flusses zu genießen.In unmittelbarer Nachbarschaft liegt ein einladendes Restaurant, das eine hervorragende Gelegenheit für kulinarische Erlebnisse direkt vor Ihrer Tür bietet. Der prachtvolle Schlosspark Benrath ist lediglich zehn Minuten entfernt und lädt zu erholsamen Spaziergängen ein. Auch das historische Schloss Benrath erreichen Sie in nur sechs Minuten mit dem Fahrrad, ein kulturelles Highlight der Region.
Für den täglichen Bedarf ist der Benrather Wochenmarkt in nur acht Minuten mit dem Fahrrad erreichbar, ebenso wie der beliebte Edeka Zurheide, der eine große Auswahl an frischen Produkten und Spezialitäten bietet. Die Straßenbahnstation "Schöne Aussicht" ist ebenfalls nur sechs Minuten mit dem Fahrrad entfernt und ermöglicht eine schnelle Anbindung an das Düsseldorfer Stadtzentrum.
Dank dieser hervorragenden Lage vereint die Immobilie die Vorzüge einer ruhigen Umgebung mit der Nähe zu urbanen Annehmlichkeiten und kulturellen Sehenswürdigkeiten.
Ausstattung
Hohe Decken für ein großzügiges RaumgefühlEdler Eichen-Parkettboden in den Wohnbereichen
komplett Barrierefrei
Moderne Alarmanlage für maximale Sicherheit
Video-Gegensprechanlage mit Kameraüberwachung
Elektrische Rollläden an allen Fenstern
Erhöhter Schallschutz für ruhiges Wohnen
Personenaufzug bis in alle Etagen
Hochwertige finnische Klafs Licht-Sauna
AquaClean-WC von der Firma Geberit
Drei sonnige Terrassen mit verschiedenen Ausrichtungen, nicht einsehbar
Zwei bis drei komfortable Tiefgaragenstellplätze á 50.000€
dezentrales Lüftungssystem
Circa 341 m² großer Garten
Gira Schalterprogramm
Bodentiefe Fenster der Firma Schüco
Husquarna Gartenroboter
Seiten: 1