Exklusive Jugendstilvilla mit einzigartigem Flair
Objekt des Tages












































Objektart
Haus
Objekttyp
Villa
Vermarktungsart
Kauf
PLZ
42699
Ort
Solingen
ImmoNr
2025-141
Wohnfläche
ca. 297 m²
Grundstücksgröße
ca. 559 m²
Nutzfläche
ca. 213 m²
Anzahl Zimmer
8
Anzahl Badezimmer
3
Kaufpreis
1.180.000,00 €
Baujahr
1902
Provision
3,57 % des Kaufpreises inkl. 19 % ges. MwSt.
Beschreibung
Diese freistehende Jugendstilvilla aus dem ca. Baujahr 1902 verkörpert zeitlose Eleganz.Für Individualisten stehen ca. 297 m² Wohnfläche, acht Zimmer, zwei Vollbäder bereit, um Wohnwünsche zu erfüllen. Eingebettet in einen extravaganten und mit viel Liebe zum Detail angelegten Garten, trifft sowohl der Innen- als auch der Außenbereich der Liegenschaft, den Geschmack anspruchsvoller Interessenten.Exklusiv, großzügig, charismatisch präsentiert sich das Juwel aus der Gründerzeit in weißer Fassade gehüllt, nebst geschmackvoll abgesetzten Stuckelementen aus der Gründerzeit in Solinger Toplage an der Grenze Merscheid – Ohligs. Immergrüne Sträucher sowie der repräsentative Schmiedezaun runden das straßenseitige Erscheinungsbild harmonisch ab.
Bereits beim Betreten der Villa lässt sich die Dominanz der großzügigen Gestaltung erahnen. Das stilvolle Entree, geprägt von Gründerzeitattributen, zeigt sich hell und geräumig – fließend übergehend in die Räumlichkeiten des Erdgeschosses, und im Weiteren über die wunderschön aufgearbeitete Holztreppe das Untergeschoss sowie die oberen Geschosse erschließend.
Deckenhöhen von über 3,50 m sowie zahlreiche große Kassettenfenster – wundervoll in Szene gesetzt durch eine luxuriöse Fensterdekoration im Einklang mit der gewählten Wand- und Fußbodengestaltung, sorgen für ein überragendes Wohnambiente.
Das Herzstück der Beletage ist der offen gehaltene Wohn-Ess-Bereich mit angrenzender Bibliothek. Lichtdurchflutet und mit einer repräsentativen Ausgestaltung wie Echtholz(flügel)türen aus der Gründerzeit, einer gemütlichen Kaminecke sowie einer modernen Luxus-Küche nebst markantem Esstisch, lässt die Living Area von ca. 85 m² keine Wünsche offen – sei es zum Verweilen oder Feiern mit Freunden.
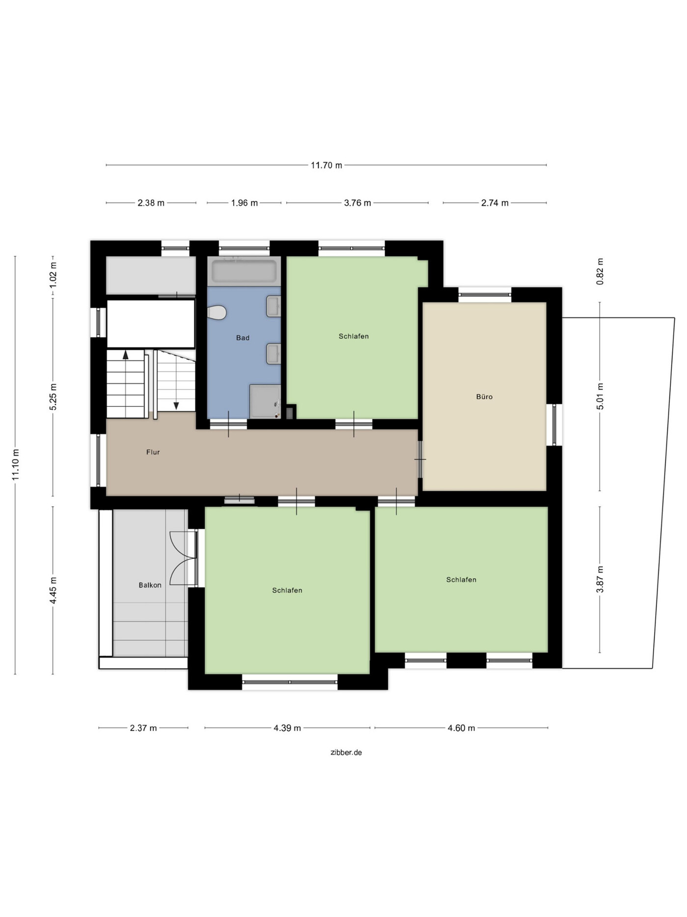
Das mit vier Zimmern sowie einem Dusch-/Wannenbad großzügig anmutende,
durchgestylte Obergeschoss sowie das derzeit als exklusiver Elterntrakt gestaltete
Dachgeschoss, welches ein Kreativstudio, das Elternschlafzimmer sowie ein großzügiges Masterbad mit integrierten Saunabereich offeriert, bieten viel Potential, um über zwei Ebenen individuelle Wohnformen zu gestalten.
Geschmackvolle und hochwertige Ausstattungsmerkmale wie Fischgrätparkett,
Epoxidharzboden in den Bädern, aber auch Raffinessen, wie der vom Elternschlafzimmer aus begehbare Kleiderschrank, bereichern gekonnt das Gesamtbild der oberen Etagen und offerieren ein extravagantes Wohnerlebnis.
Das Tageslicht-Masterbad mit Eckbadewanne, Wellnessdusche und integrierter Sauna ist ein Traum, der seinesgleichen sucht: High-End-Fußboden, Designer-Badmöbel, großformatige helle Fliesen sorgen für Komfort und Behaglichkeit. Die hochwertige, geschmackvolle Ausführung wird vollendet durch integrierte Lichteffekte - einfach ein perfekt durchgestylter Wohlfühlbereich.
Der imposante Garten des Anwesens präsentiert sich stilvoll mit ausgewählten
Hinguckern und harmonisch in das Gesamtbild integrierten idyllischen Oasen wie der überdachten Terrasse, der Sonnenterrasse oder dem Pavillon. Für gemütliche Abende unter Sternen wartet zudem das Obergeschoss mit einer Loggia auf.
Im Untergeschoss laden ein Billardtisch sowie eine gemütliche Bar zum Feiern ein.
Weitere Kellerräumlichkeiten zur Unterbringung des Notwendigen sowie ein Arbeitsraum im EG runden das Angebot ab.
Der Carport sowie ein PKW-Außenstellplatz erlauben ein komfortables Parken vor der Haustüre.
Ein besonderes Anwesen mit viel Charme und einem sensationellen Raumangebot -lassen Sie sich begeistern.
Lage
Die Herzogstraße in Solingen Merscheid repräsentiert ein äußerst attraktives Wohngebiet, das urbanes Leben mit der Nähe zur Natur ideal kombiniert und eine hohe Lebensqualität bietet.Familienfreundlichkeit wird in der Herzogstraße großgeschrieben: Kindergarten, Grundschule und Gymnasium befinden sich alle in fußläufiger Entfernung, was den Alltag für Familien mit Kindern besonders bequem macht.
Nur zwei Minuten zu Fuß entfernt, lädt das idyllische Lochbachtal zu entspannenden Spaziergängen und aktiver Erholung ein. Der Merscheider Rundwanderweg bietet zusätzlich die Möglichkeit, die lokale Flora und Fauna hautnah zu erleben – perfekt für Naturliebhaber und Erholungssuchende. Sportbegeisterte finden in der unmittelbaren Umgebung mehrere Sportvereine, darunter einen Tennisverein, der ebenfalls nur zwei Gehminuten entfernt ist.
Die Herzogstraße ist verkehrstechnisch hervorragend angebunden. Das Stadtzentrum von Solingen mit seinem Multiplex Kino und weitere kulturelle Angebote sind schnell erreichbar, ebenso der Stadtteil Ohligs mit dem ICE-Bahnhof. Von hier aus sind die Metropolen Köln und Düsseldorf mit ihren unzähligen beruflichen und kulturellen Möglichkeiten in nur etwa 30 Minuten per S-Bahn oder Regionalbahn zugänglich.
Die Anbindung an die Autobahnen A3 und A46 ist ein weiterer Pluspunkt für Berufspendler, die eine schnelle Verbindung in die umliegenden Städte und Regionen schätzen – beide Autobahnen sind in nur 15 Minuten erreichbar.
Für den täglichen Bedarf bietet die nahegelegene Merscheider Straße eine Vielzahl an Einkaufsmöglichkeiten, Apotheken und ärztlichen Praxen, was das Leben in der Herzogstraße besonders komfortabel macht.
Insgesamt bietet die Herzogstraße in Solingen Merscheid eine perfekte Mischung aus stadtnahem Wohnen und naturnaher Erholung, ideal für alle, die Wert auf Lebensqualität, Komfort und eine hervorragende Infrastruktur legen.
Solingen, die Klingenstadt, ist eine kreisfreie Großstadt im Regierungsbezirk
Düsseldorf in Nordrhein-Westfalen.
Solingen gehört zum Bergischen Land und zum Bergischen Städtedreieck, die Stadt ist zudem Bestandteil der Metropolregion Rheinland und des Landschaftsverbands Rheinland.
Solingen ist auf Platz 52 der größten Städte Deutschlands.
Die Stadt Solingen ist das Zentrum der deutschen Schneidwarenindustrie, insbesondere bei der Herstellung von
Klingen sind Unternehmen aus Solingen weltweit führend. Etwa 90 Prozent der deutschen Schneidwarenund Besteckhersteller sind in Solingen ansässig.
Solinger Schneidwaren sind mit der Herkunftsangabe Solingen durch die Solingenverordnung seit 1938 gesetzlich
geschützt. Damit ist Solingen die erste Stadt weltweit, die auf diese Weise Schneidwarenprodukte schützt. Seit
dem 19. März 2012 führt Solingen den amtlichen Namenszusatz Klingenstadt.
Herzlich willkommen in Solingen!
Ausstattung
Die Bau- und Ausstattungsbeschreibung darf als hochwertige und werterhaltendeAusführung bezeichnet werden:
• Absolute Top-Lage in Solingen Merscheid / Grenze Ohligs
• Stilelemente aus der Gründerzeit
• Aufwändige Objektsanierung mit Liebe zum Detail
• Deckenhöhe von über 3,50 m
• Offener Wohn- und Essbereich mit angrenzender Bibliothek
• Luxusküche mit Markengerätschaften im Kaufpreis enthalten
• Original Echtholztüren aus der Gründerzeit
• Kamin im Essbereich
• Fischgrätparkett
• Villa rundum begehbar
• Überdachter Hauszugang
• Pavillon
• Kopfsteinpflaster
• Kunststoffrahmen-Fenster doppelisolierverglast
• Sechs separate Zimmer + zwei Zimmer im Wohnbereich
• Massives Schmiedetor und Schmiedezaun
• Markise
• Carport aus Bj. 2013
• Aktuell 1x weiterer Außenstellplatz (mehre Außenstellplätze möglich)
• Beheizter Keller
• Hobbyraum mit Billardtisch (optional erwerbbar)
• Neue Dacheindeckung inkl. neuer Dämmung aus ca. 2006
• Öl-Zentralheizung mit 5.000L Öl-Tank
• Separater Wäscheraum
• Alarmanlage
• Geräteschuppen / erweiterte Garage
• Masterbadezimmer mit Badewanne, Dusche und Sauna
• Epoxidharzboden in den Bädern
• Balkon im Obergeschoss
• u.v.m.
Seiten: 1