Lichtdurchflutete Landhausvilla mit Schwimmteich und liebevoll gestalteter Gartenoase


































































Objektart
Haus
Objekttyp
Villa
Vermarktungsart
Kauf
PLZ
40764
Ort
Langenfeld
ImmoNr
2025-278
Wohnfläche
ca. 357 m²
Grundstücksgröße
ca. 1.111 m²
Nutzfläche
ca. 351 m²
Anzahl Zimmer
8
Anzahl Badezimmer
4
Kaufpreis
1.379.000,00 €
Baujahr
1985
Endenergieverbrauch
92,7 kWh/(m²a)
Energieausweis
Verbrauchsausweis
Energieausweis gültig bis
31.03.2026
Energieeffizienzklasse
C
Provision
2,975 % des Kaufpreises inkl. 19 % ges. MwSt.
Beschreibung
Willkommen in Ihrem neuen Zuhause – eine exklusive Landhausvilla in Langenfeld, ideal geeignet zum Mehrgenerationenwohnen oder Arbeiten und Wohnen in einem.Dieses außergewöhnliche Anwesen aus dem Baujahr 1985 wurde stetig werterhalten und vereint stilvollen Wohnkomfort mit großzügiger Raumaufteilung und vielfältigen Nutzungsmöglichkeiten. Auf einem weitläufigen Grundstück von ca. 1.111 m² erstreckt sich eine beeindruckende Wohnfläche von ca. 357 m², die sowohl private Rückzugsorte als auch großzügige Gemeinschaftsflächen bietet.
Bereits der repräsentative Eingangsbereich heißt Sie in einem einladenden Ambiente willkommen. Das Erdgeschoss überzeugt mit einem offenen Wohn- und Essbereich, der durch einen charmanten Kachelofen eine behagliche Atmosphäre schafft – ideal für gemütliche Abende. Die angrenzende, überdachte Terrasse eröffnet einen herrlichen Blick auf den gepflegten Koiteich und lädt zum Verweilen ein. Die hochwertig ausgestattete Landhausküche erfüllt mit ihren modernen Einbaugeräten alle Ansprüche anspruchsvoller Hobbyköche.
Modernste Ausstattungsdetails wie Fußbodenheizung, maßgefertigte Einbauschränke und stilvolle Einbaustrahler sorgen für höchsten Wohnkomfort. Ein besonderes Highlight ist der großzügige Wintergarten mit offen gemauertem Kamin und integrierter Bar – ein perfekter Ort für entspannte Stunden oder gesellige Runden. Des Weiteren erwartet Sie im Erdgeschoss, ein Schlafzimmer mit Bad en suite.
Im Obergeschoss erwartet Sie eine durchdacht gestaltete Wohnebene mit offener Küche und praktischer Durchreiche. Das großzügige Schlafzimmer verfügt über ein modernes Bad en suite mit Whirlpool-Badewanne sowie Zugang zu einem kleinen Balkon. Weitere Räume eignen sich flexibel als Kinder-, Gäste- oder Arbeitszimmer. Eine offene Empore und ein zusätzlicher Balkon mit Gartenblick runden das Raumangebot ab.
Das Kellergeschoss bietet neben einem Gäste-WC viel Stauraum dank durchdachter Einbauschränke. Zwei weitere Zimmer lassen sich ideal als Schlafzimmer, Homeoffice oder Hobbyräume nutzen.
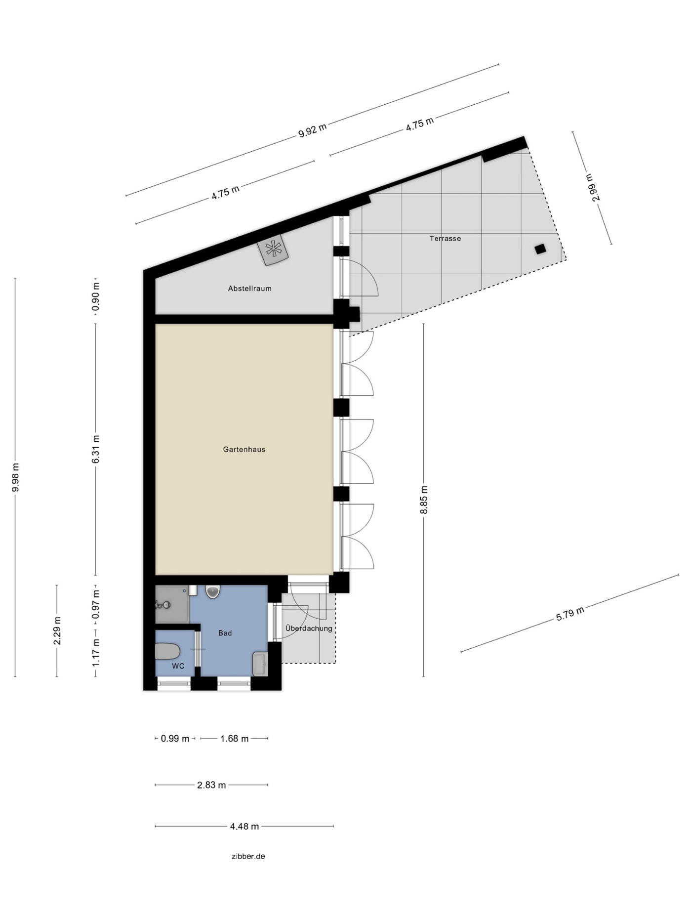
Der liebevoll angelegte Außenbereich ist eine wahre Garten-Oase: Neben einem idyllischen Schwimmteich finden Sie zwei sonnige Terrassen und ein vollständig ausgestattetes Gartenhaus mit Fußbodenheizung und moderner Sanitäranlage – perfekt geignet als Büro oder Atelier.
Praktisch: Direkte Zugänge vom Garten zur Straße sorgen für maximale Flexibilität im Alltag.
Dank der vielseitigen Gestaltungsmöglichkeiten und der hochwertigen Ausstattung ist dieses Anwesen weit mehr als nur ein Haus – es ist ein Ort zum Leben, Wohlfühlen und Genießen. Die Immobilie ist nach Absprache verfügbar – zögern Sie nicht, sich diesen Wohntraum zu erfüllen.
Lage
Dieses charmante Zweifamilienhaus befindet sich in einer begehrten Wohnlage in Langenfeld, einer lebendigen Stadt im Herzen von Nordrhein-Westfalen. Langenfeld verbindet auf harmonische Weise das ruhige Leben am Stadtrand mit der unmittelbaren Nähe zu urbanen Zentren wie Düsseldorf und Köln. Die Umgebung des Hauses ist geprägt von einer einladenden Nachbarschaft, die besonders bei Familien und Pendlern beliebt ist.In der näheren Umgebung befinden sich zahlreiche Annehmlichkeiten, darunter Einkaufsmöglichkeiten, Restaurants, Cafés und Schulen. Die gute Anbindung an öffentliche Verkehrsmittel sowie die Nähe zu den Autobahnen A3 und A59 gewährleisten eine hervorragende Erreichbarkeit der umliegenden Städte und Gemeinden. Zudem laden nahegelegene Grünflächen und Parks zur Erholung im Freien ein.
Diese brillante Lage macht das angebotene Zweifamilienhaus zu einem idealen Zuhause für all jene, die sowohl die Ruhe eines Wohnviertels als auch die Vorteile einer guten Infrastruktur zu schätzen wissen.
Ausstattung
Die Landhausstilvilla - Viel Platz - mit warmen und idyllischen Ambiente- Großzügiger Eingangsbereich
- Gäste-WC
- Esszimmer mit Kachelofen
- angrenzende überdachte Terrasse mit tollem Ausblick auf den Koiteich
- Landhausküche inklusive Einbaugeräten
- Fußbodenheizung
- hochwertig angefertigte Einbauschränke
- offener Wohnbereich mit Wintergarten
- offener massiv gemauerter Kamin
- Bar mit Tresen und Zapfanlage
- Schlafzimmer mit Bad en suite
- Einbaustrahler
- Großzügige Garten-Oase mit Schwimmteich, zwei Terrassen, Gartenhütte
- Komplett ausgebautes Gartenhaus mit Fußbodenheizung, hoher Decke und modernem Badezimmer – ideal nutzbar als Atelier oder Büro
- überdachte Terrasse
- Abstellraum
- zwei separate Zugänge von der Straße zum Garten.
1. Etage
- Offene Gestaltung im Eingangsbereich
- Küche mit Durchreiche
- Ein Schlafzimmer mit Bad en suite, modernes Badezimmer mit Whirlpool Badewanne und kleinem Balkon
- Ein Schlafzimmer / Büro
- Gäste-WC
- Einbaukamin
- großzügige Empore
- Balkon mit Gartenblick und windgeschütztem Seitenfenster
- Kellergeschoss
- Gäste-WC
- Praktische Einbauschränke zum Lagern
- Kellerräume
- Zwei Schlafzimmer / Gästezimmer / Büro
Seiten: 1