1-Raum Bürofläche in Top-Architekturobjekt
Neu















Objektart
Büro/Praxen
Objekttyp
Bürofläche
Vermarktungsart
Miete
PLZ
40721
Ort
Hilden
ImmoNr
2026-445
Anzahl Zimmer
1
Kaltmiete
495,00 €
Baujahr
2003
Kaution
2.409,75 €
Beschreibung
+ architektonisch anspruchsvoll gestaltetes 4-geschossigesBürogebäude mit integrierten Hallen
+ ökologisch wertvolles Gründach (gute Dämmwirkung)
+ die Flächen liegen im 1. Obergeschoss mit gemeinschaftlichen Nebenflächen
+ alle Leitungsarten (EDV, Kommunikation, Strom, Ver- und
Entsorgung) im Doppelboden verlegbar, soweit nicht schon
vorhanden
+ Anzahl der Stellplätze können variabel dazugemietet werden.
Pro Stellplatz beträgt die Miete 30 €/mtl. zzgl. NK und 19 % MwSt.
Die jeweilige Gesamtmiete wird zzgl. 19% MwSt. berechnet.
Lage
+ in der Mitte des Städte-Dreiecks Düsseldorf/Wuppertal/Köln ineinem ruhigen Gewerbegebiet in Hilden in Innenstadt-Nähe
gelegen
+ ca. 5 Fahrminuten zum Autobahnkreuz Hilden (A46/A3)
+ ca. 5 Fahrminuten zum Autobahnkreuz Düsseldorf-Süd
(A46/A59)
+ öffentliche Verkehrsmittel ca. 5 Gehminuten
+ interessanter Mietermix (verschiedene Ingenieurbüros, Pflegedienst
Vermögensberatung, Physiotherapeutische Praxis,
Ergotherapeutische Praxis, Facility-Management-Unternehmen)
+ ca. 3 Fahrminuten von der Innenstadt
Ausstattung
+ Aufzug+ Video-Überwachung der Eingangsbereiche
+ schlüssellose Zugangstechnik (Zugangskontrolle möglich)
+ EDV-Arbeitsplatz-gerechte Beleuchtung
+ Doppelboden mit ortsveränderbaren Bodentanks mit
Steckdosen für 240 V-Netz, EDV und Kommunikation, belegt mit
hochwertigem Nadelfilz- Teppichboden
+ Sonnenschutz-Jalousien
+ das Gebäude ist an das öffentliche Glasfaser-
Kommunikationsnetz angeschlossen (Highspeed-Internet
+ Wärmedämm-Fassade
+ verbrauchsabhängige und damit genaueste
Nebenkostenabrechnung (Wasserzähler, Wärmemengenzähler
und elektronische Heizkostenverteiler)
+ Stellplätze zur Anmietung vorhanden
Sonstige Angaben
Alle Preise sind zzgl. 19% MwSt.Kaution: 3-Bruttomonatsmieten inkl. 19% MwSt.
Die Kaution erhöht sich bei der Anmietung von Stellplätzen entsprechend der Anzahl.
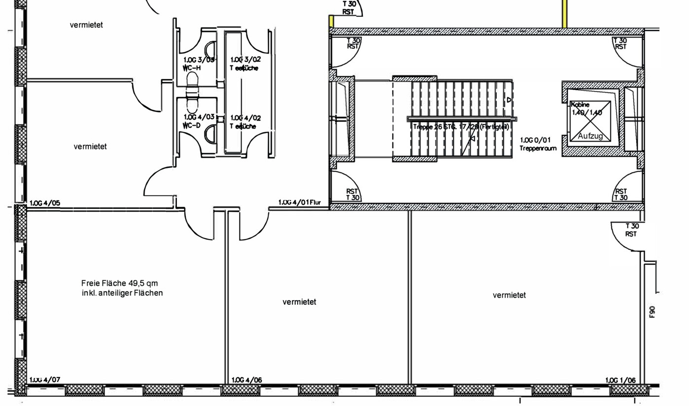
+weitere gegebenenfalls noch verfügbare Büroräume sind im
vorgenannten Grundrissplan mit den dazugehörigen Mietpreisen
gekennzeichnet
+ bei der hier angebotenen Bürofläche handelt es sich um einen
Büroraum mit der Raum-Nr. 1.OG 4/07 des unter den Objektfotos
zu findenden Grundrissplans (PDF-Datei)
+ in der angegebenen Fläche des Raums ist ein Flächenanteil Flur, Teeküche und WC enthalten
+ weitere gegebenenfalls noch verfügbare Büroräume sind im
vorgenannten Grundrissplan mit den dazugehörigen Mietpreisen
gekennzeichnet
+ der Flurbereich, die WC-Räume, sowie die Teeküche, welche
vollständig eingerichtet ist (Unterschränke, Kühlschrank,
Mikrowelle, Spülmaschine), werden gemeinsam mit den Mietern
der übrigen Büroräume gemäß des vorgenannten
Grundrissplans genutzt
Seiten: 1